Na sprzedaż przytulna kawalerka 26m2 po remoncie os. Piastowskie w INOWROCŁAWIU
Na sprzedaż oferujemy kawalerkę o powierzchni ok.26 m2, położoną na III piętrze w budynku przy ul. Marulewskiej w INOWROCŁAWIU.
Mieszkanie przeszło generalny remont, dzięki czemu nie wymaga żadnych nakładów finansowych.
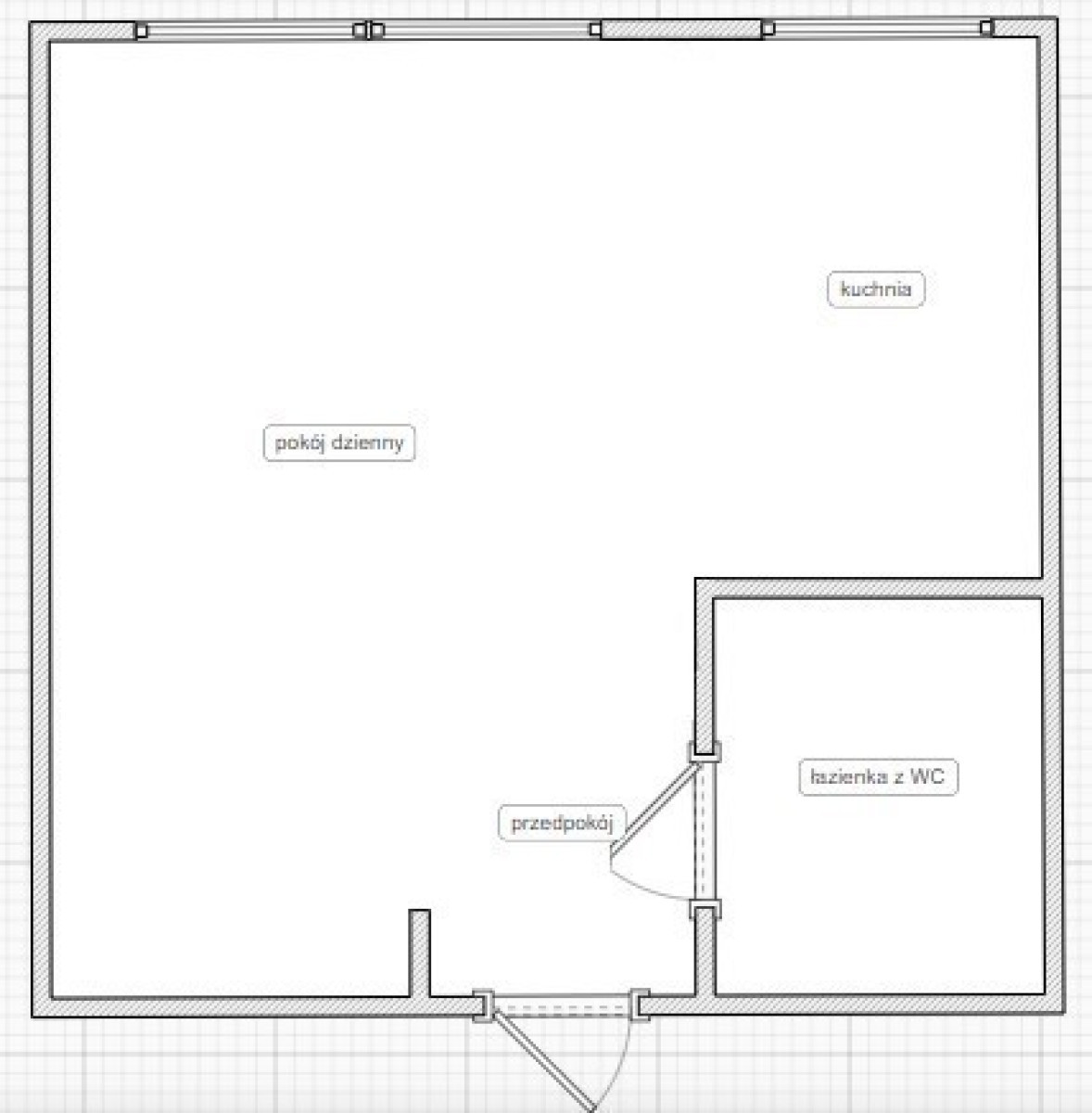
Po wyburzeniu ściany między pokojem a kuchnią powstała atrakcyjna przestrzeń, która nadaje wnętrzu nowoczesny charakter.
Standard wykończenia:
* wymieniona instalacja elektryczna,
* nowe drzwi wejściowe oraz wewnętrzne,
* na podłodze panele,
* w łazience: na ścianie płytki, na podłodze gres, nowa armatura,
* w kuchni w pasie roboczym płytki.
W cenie zabudowa kuchenna, sprzęt AGD (płyta indukcyjna, okap).
Atuty nieruchomości:
* niski czynsz do KSM - tylko ok. 280zł
* mieszkanie bardzo ciepłe
i ekonomiczne w utrzymaniu.
Mieszkanie położone jest w wygodnej lokalizacji - w pobliżu znajdują się sklepy,
przystanek autobusowy, lokalne sklepiki oraz szkoła, co czyni je praktycznym wyborem zarówno do zamieszkania, jak i pod wynajem.
Cena: 179,000zł
Serdecznie zapraszamy na prezentację.
Oferujemy bezpłatną pomoc w uzyskaniu kredytu.
Biuro Nieruchomości Patronus
ul. K. Marcinkowskiego 11/12
88-100 Inowrocław
LICENCJA NR 21945
Oferta nr 1987
tel. 607 293 854
- Ilość pokoi : 1
- Powierzchnia : 26
- Piętro : 3
Patronus Nieruchomości
- Kontakt: Leszek