Ostatnie mieszkanie - 58,6m2 - możiiwość wykończenia pod klucz

Lokalizacja: Inowrocław

OSTATNIE DOSTĘPNE MIESZKANIE ! WINDA !

Prezentujemy Państwu na sprzedaż mieszkanie o powierzchni 58,6m2 w nowym budynku na osiedlu zamkniętym w uzdrowiskowym Inowrocławiu.

Wysoki standard wykończenia.
Blok wyposażony w windę, drzwi antywłamaniowe firmy Porta, wideodomofony,
ogrzewanie gazowe.

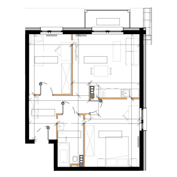
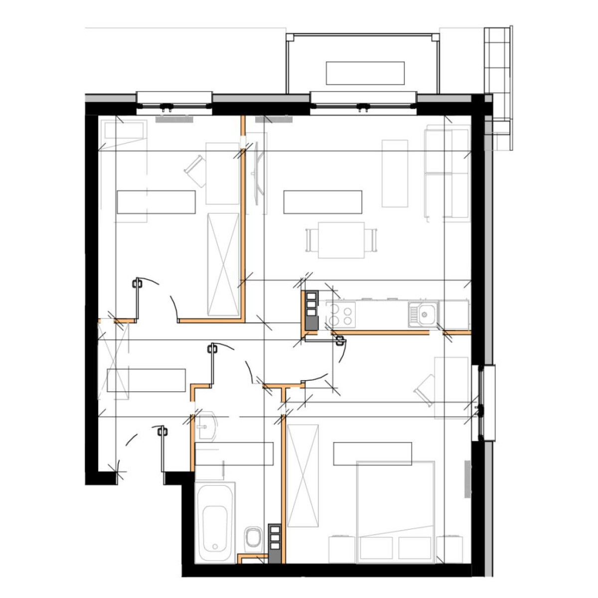
Mieszkanie składa się z następujących pomieszczeń:
Przedpokój 7.2m2
Pokój 11.67m2
Pokój z aneksem 18.57m2
Sypialnia 16.11m2
Łazienka 5.05 m2
Razem 58,6m2

Cena: 439.500 zł.
Istnieje możliwość dokupienia miejsca postojowego w cenie 8.000 zł.

Lokal w stanie developerskim z możliwością wykończenia mieszkania pod klucz.

Doskonała lokalizacja.

Serdecznie zapraszamy na prezentację.

Oferujemy bezpłatną pomoc w uzyskaniu kredytu.

Biuro Nieruchomości Patronus
ul. K. Marcinkowskiego 11/12
88-100 Inowrocław
LICENCJA NR 21945

Oferta 1882
tel. 607 293 854

Info
  • Ilość pokoi : 3
  • Powierzchnia : 58,6
  • Piętro : 2
Powiadom znajomych

Kontakt z ogłoszeniodawcą
PW MAXIMA Dariusz Latański
Patronus Nieruchomości
  • Kontakt: Leszek

Inne ogłoszenia tego użytkownika