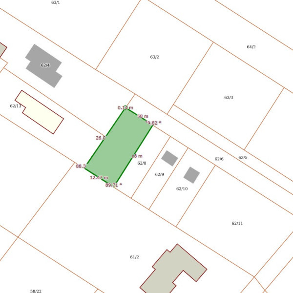
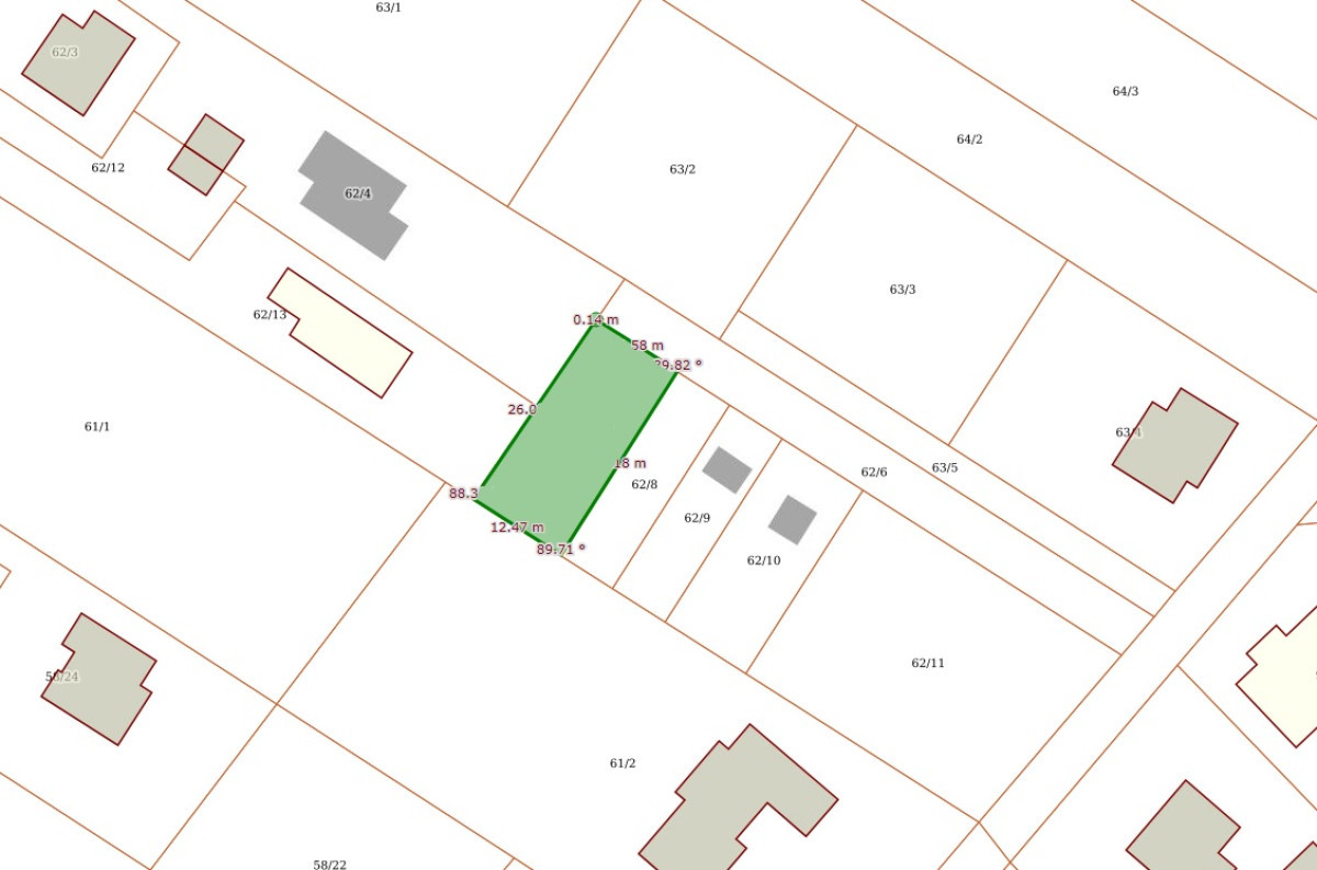
Działka 314m2 pod zabudowę jednorodzinną w Janikowie

photo_size_select_actual 1
Lokalizacja: dowolna
Prezentujemy Państwu działkę w kształcie prostokąta o powierzchni 314m2 znajdującą się w cichej i kameralnej okolicy w otoczeniu nowo wybudowanych domów jednorodzinnych w Janikowie.
Działka: klasoużytek RIIIa, dla której obowiązuje miejscowy plan zagospodarowania przestrzennego o symbolu : 1MN,U: teren zabudowy jednorodzinnej z usługami nieuciążliwymi.
Serdecznie zapraszamy na prezentację.
Oferujemy Państwu bezpłatną pomoc w uzyskaniu kredytu.
Oferta nr 1740
tel. 516 148 308
Kontakt z ogłoszeniodawcą

Patronus Nieruchomości
- Kontakt: Dariusz