Dom w zabudowie bliźniaczej 75,74m2 koło Inowrocławia

Prezentujemy Państwu na sprzedaż budynek w zabudowie bliźniaczej o łącznej powierzchni 75,74, działka ogrodzona 180m2. Dom w stanie deweloperskim.
- miejsce parkingowe,
- ogrzewanie podłogowe (ogrzewanie gazowe)
- okna zewnętrzne PVC, trzyszybowe
- rolety zewnętrzne, antywłamaniowe, sterowane elektrycznie,
- drzwi zewnętrzne antywłamaniowe,
- instalacja elektryczna,
- tynki gipsowe,
- ściany budynku zostały wykonane z betonu komórkowego Solbet i ocieplone styropianem o grubości 20 cm.
- bardzo dobra lokalizacja, w spokojnej okolicy, z dojściem i dojazdem z drogi asfaltowej
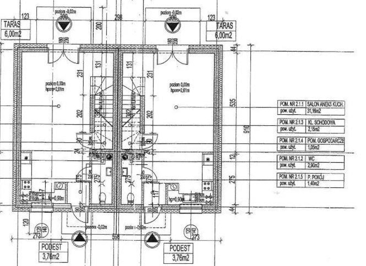
NIERUCHOMOŚĆ SKŁADA SIĘ Z:
Parter
- salon z aneksem kuchennym - 31,16m
- przedsionek - 1,40m
- wc z kotłownią / z możliwością wykorzystania na pralnio suszarnie - 2,9m - schowek - 1,05 m
Piętro
- Pokój - 10,36m2
- Pokój - 9,03m2
- Pokój - 7,36m2
- Łazienka - 4,82m2
- korytarz - 3,36m2
- Klatka schodowa - 2,15m2
działka nr 116/14
Cena: 477.500 zł
Serdecznie zapraszamy na prezentację.
Oferujemy bezpłatną pomoc w uzyskaniu kredytu.
Biuro Nieruchomości Patronus
ul. K. Marcinkowskiego 11/12
88-100 Inowrocław
nr licencji: 21945
Oferta nr 1818
tel. 607 293 854
- Powierzchnia : 76
- Działka : 180

Patronus Nieruchomości
- Kontakt: Leszek