Ostatnie mieszkania - 56,90 m2 - możiiwość wykończenia pod klucz
OSTATNIE DOSTĘPNE MIESZKANIA ! WINDA !
Prezentujemy Państwu na sprzedaż mieszkanie o powierzchni 56,90 m2 w nowym budynku na osiedlu zamkniętym w uzdrowiskowym Inowrocławiu.
Wysoki standard wykończenia.
Blok wyposażony w windę, drzwi antywłamaniowe firmy Porta, wideodomofony,
ogrzewanie gazowe.
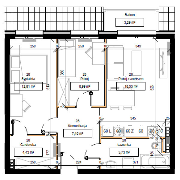
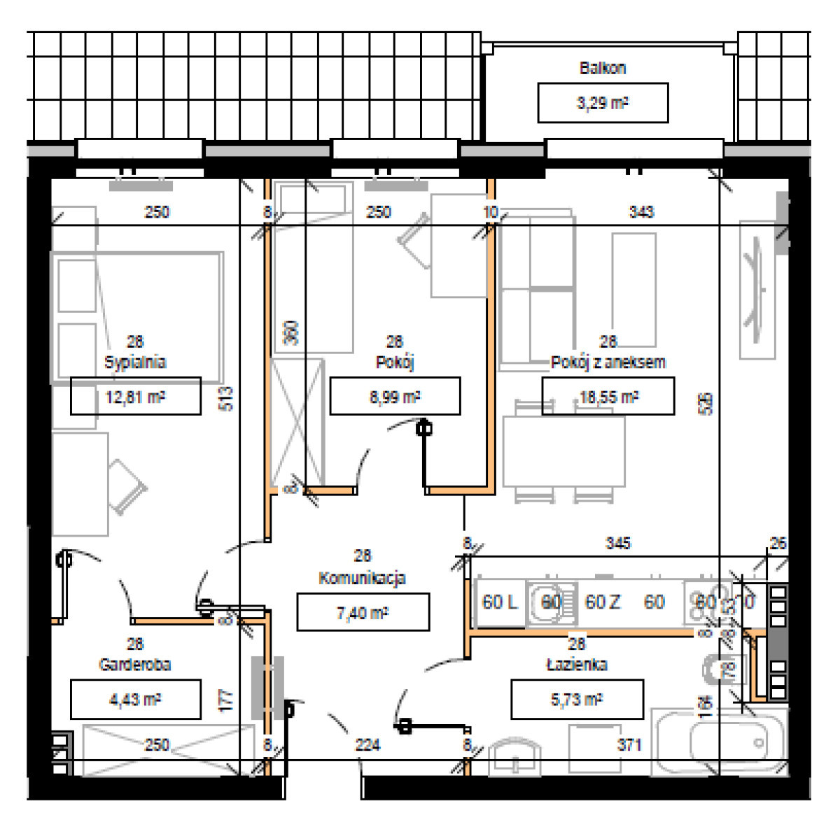
Mieszkanie składa się z następujących pomieszczeń:
Przedpokój 7.40 m2
Pokój 8.99 m2
Pokój z aneksem 18.55 m2
Sypialnia 12.81 m2
Łazienka 5.73 m2
Razem 56,90 m2
Balkon: 3,29 m2
Cena: 460.890 zł.
Istnieje możliwość dokupienia miejsca postojowego w cenie 10.000 zł.
Lokal w stanie developerskim z możliwością wykończenia mieszkania pod klucz.
Doskonała lokalizacja.
Serdecznie zapraszamy na prezentację.
Oferujemy bezpłatną pomoc w uzyskaniu kredytu.
Biuro Nieruchomości Patronus
ul. K. Marcinkowskiego 11/12
88-100 Inowrocław
LICENCJA NR 21945
Oferta 1882
tel. 607 293 854
- Ilość pokoi : 3
- Powierzchnia : 56,90
- Piętro : 2
Patronus Nieruchomości
- Kontakt: Leszek