Ostatnie mieszkanie - 58,6m2 - możliwość wykończenia pod klucz

OSTATNIE DOSTĘPNE MIESZKANIE ! WINDA !
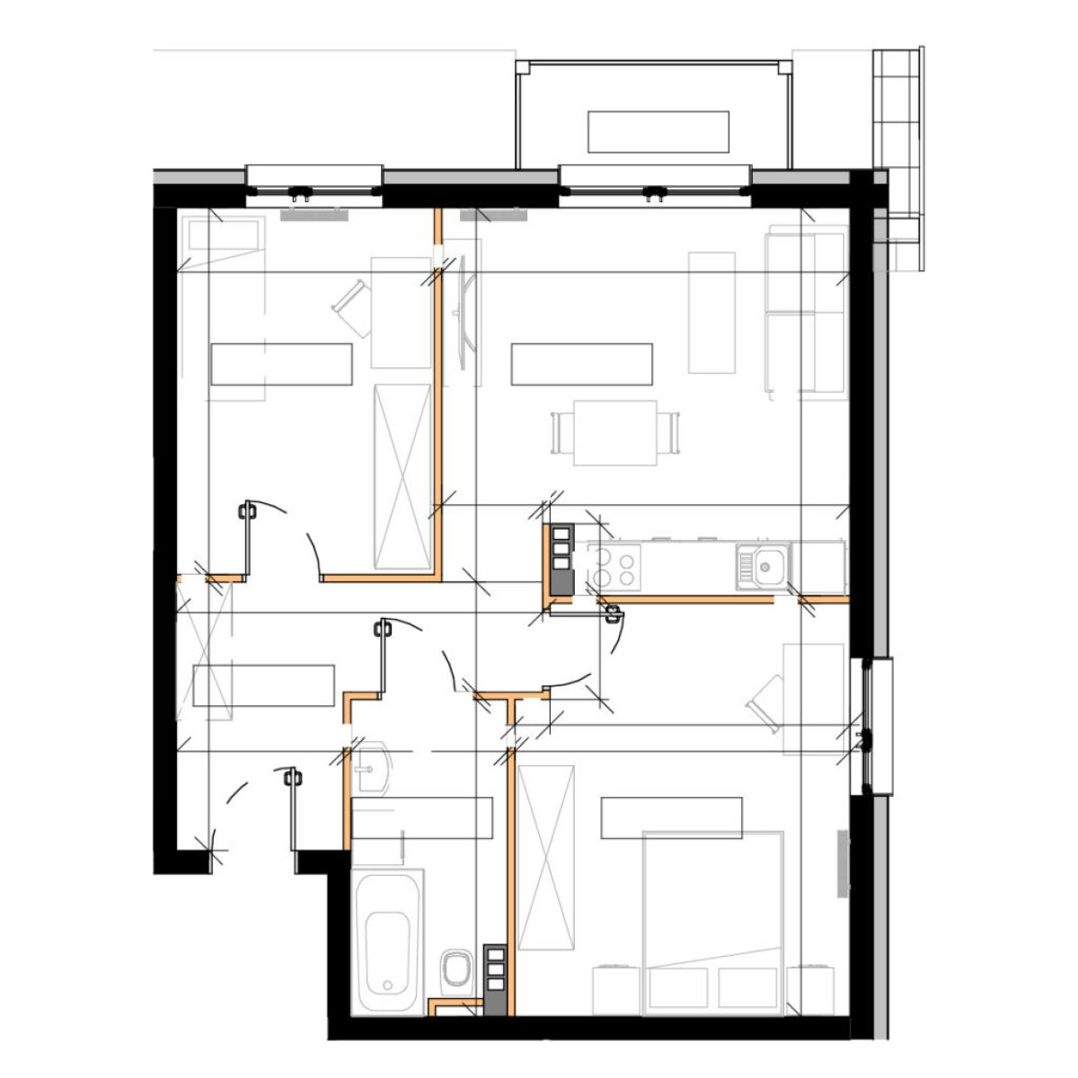
Prezentujemy Państwu na sprzedaż mieszkanie o powierzchni 58,6m2 usytuowane na II piętrze w nowym budynku na osiedlu zamkniętym w Inowrocławiu.
Wysoki standard wykończenia.
Blok wyposażony w windę, drzwi antywłamaniowe firmy Porta, wideodomofony,
ogrzewanie gazowe.
Mieszkanie składa się z następujących pomieszczeń:
Przedpokój 7.2m2
Pokój 11.67m2
Pokój z aneksem 18.57m2
Sypialnia 16.11m2
Łazienka 5.05 m2
Razem 58,6m2
Cena: 439.500 zł.
Istnieje możliwość dokupienia miejsca postojowego w cenie 8.000 zł.
Lokal w stanie developerskim z możliwością wykończenia mieszkania pod klucz.
Doskonała lokalizacja.
Serdecznie zapraszamy na prezentację.
Oferujemy bezpłatną pomoc w uzyskaniu kredytu.
Biuro Nieruchomości Patronus
ul. K. Marcinkowskiego 11/ 12
88-100 Inowrocław
Oferta 1882
tel. 607 293 854
- Ilość pokoi : 3
- Powierzchnia : 58,6
- Piętro : 2

Patronus Nieruchomości
- Kontakt: Leszek