Sprzedam mieszkanie w kamienicy w centrum Inowrocław
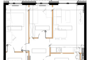
Prezentujemy Państwu na sprzedaż mieszkanie o powierzchni 50 m2 usytuowane na pierwszym piętrze w kamienicy w centrum Inowrocławia.
Lokal składa się z trzech pokoi, kuchni z oknem, oraz łazienki i WC. Mieszkanie w trakcie remontu, możliwość ustalenia zakresu prac remontowych. Wymieniona instalacja wodna, kanalizacyjne, centralnego ogrzewania, elektryczna, nowe drzwi wejściowe. Instalacja gazowa (licznik na klatce schodowej). Do mieszkania przynależy piwnica.
Atutem mieszkania jest lokalizacja w centrum miasta. Odrębna własność lokalu.
Cena 195.000 zł.
Zapraszamy na prezentację.
Oferujemy bezpłatną pomoc w uzyskaniu kredytu.
Biuro Nieruchomości Patronus
ul. Karola Marcinkowskiego 11/ 12, Inowrocław
Oferta nr 1910
tel. 607 293 854
- Ilość pokoi : 3
- Powierzchnia : 50
- Piętro : 1

Patronus Nieruchomości
- Kontakt: Leszek